Projet de lotissement "le Clos de Brennus" :

Centrale solaire du Pioch de Gaïx :

Chiffres clé
CentraleSolaire_ChiffresCle.pdf
Document Adobe Acrobat [350.2 KB]

publié le :  05/10/2023

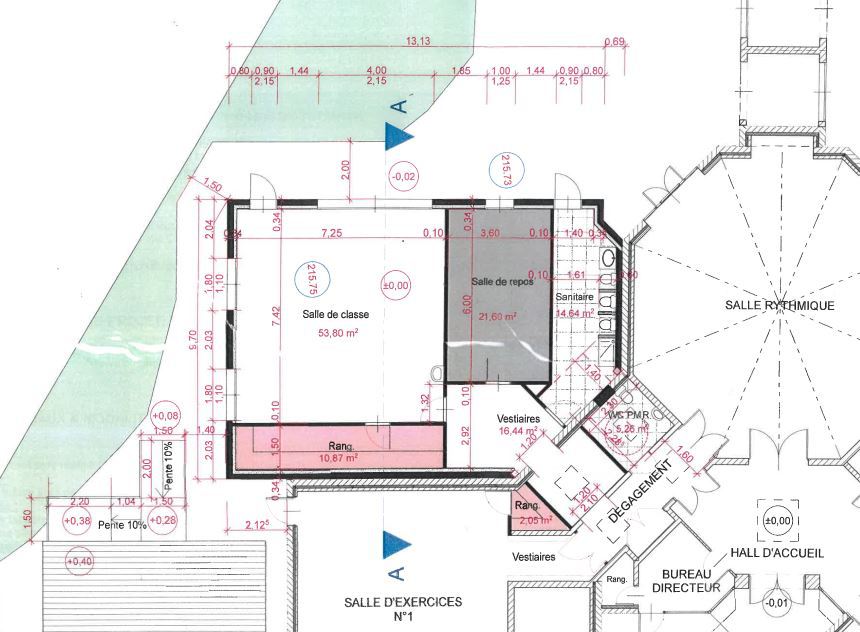
Extension classe école :

publié le :  18/03/2023

Zone humide : Le cheminement piéton en marche :

publié le :  28/01/2022

La dernière phase de travaux de la rue des Orchidées est terminée :

publié le :  08/12/2021

Travaux de confortement de berge de la Durenque :

Des travaux de confortement de la berge de la Durenque viennent d'être réalisés après le pont de Pélapoul.

Cette opération avait pour but de stopper l'affouillement de la berge et de sécuriser les usagers de la voie communale (rue de la Durenque).

publié le :  14/10/2021

Extension Ecole :

Depuis quelques années, les inscriptions des enfants au groupe scolaire Jacques Cros ne cessent d’augmenter.

Après l’agrandissement de la cantine en 2017, c’est autour de la maternelle d’avoir un espace approprié aux tout-petits avec la création d’une nouvelle salle de classe, d’un dortoir et de sanitaires aux normes PMR.

Le bâtiment préfabriqué qui accueillait une classe deviendra un espace pour accueillir les enfants dans le cadre de l’ALAE (garderies) mais également une salle de repos et/ou de lecture. 

Par ailleurs, l’ensemble du groupe scolaire sera équipé d’une pompe à chaleur dans le but d’éviter la consommation d’énergie fossile (chauffage au gaz actuellement utilisé) et permettre de traverser les périodes caniculaires dues au dérèglement climatique en toute sécurité pour les élèves et le personnel.

L’investissement de cet agrandissement s’élève à 281 957.00 € et sera en partie subventionné par les partenaires institutionnels.

publié le :  23/08/2021

Cheminement piéton sécurisé :

Des potelets ont été récemment placés sur l'avenue Louis Raucoules, côté droit en direction de Castres pour interdire le stationnement sur le trottoir dans cette courbe et assurer la sécurité du cheminement piéton aux abords de cet axe très circulé.

Le stationnement est autorisé et matérialisé au sol sur le trottoir opposé avec le maintien d'un cheminement pour les piétons d'une largeur de 90cm. 

Un nouveau passage piéton a également été matérialisé.

publié le :  26/01/2021

Déploiement de la fibre sur Valdurenque :

Le déploiement du réseau Fibre à VALDURENQUE a débuté en 2020. C’est la filiale du groupe ALTICE – SFR FTTH qui est chargée de déployer le nouveau réseau de télécommunication fibre pour les 14 communes de l’Agglomération Castres Mazamet.

La particularité de cette mission réside dans le fait qu’SFR récupère auprès de l’Opérateur Orange un programme de déploiement déjà initié par ce dernier.

En raison du transfert des équipements du réseau Orange vers SFR mais également de la crise sanitaire, des restrictions et du ralentissement des livraisons de matériel, la fin du déploiement est reportée sur le premier trimestre 2021.

Dès que le réseau fibre Ftth (Fiber To The Home) est ouvert, SFR FTTH informe l'ensemble des Fournisseurs d'Accès nationaux.

Pour la commune de VALDURENQUE, Près de 488 logements et locaux professionnels sont concernés aujourd’hui. 79% des logements ont pour l’instant été couverts en câble fibre. D’autres étapes de travaux restent à faire avant de rendre les premières prises éligibles.

Les habitants et professionnels de VALDURENQUE pourront ainsi profiter de la vitesse et de la performance du Très Haut Débit. La fibre propose les débits les plus élevés du marché, permettant de répondre à l’explosion des usages, aux services toujours plus innovants et à la convergence des contenus. Pour les utilisateurs, c’est la possibilité d’accéder aux services Internet Très Haut Débit, téléphone et télévision en haute qualité, dans des conditions de fonctionnement optimales. Les temps de chargements se réduisent considérablement. Ainsi, les clients éligibles à la fibre peuvent échanger et partager des fichiers volumineux presque instantanément.

Ils profitent également d’une qualité d’image excellente (qualité HD, 4K) pour plusieurs écrans du foyer et bénéficient de l’ensemble de leurs services simultanément, sans perte de qualité pour l’un d’eux.

A titre d'exemple, la durée de téléchargement d'un film de 700 Mo passe de 5 minutes en ADSL à 7 secondes avec la fibre à 1Gbit/s. De la même façon, une saison de série (10 épisodes, soit 5 000 Mo) se télécharge en 50 secondes avec la fibre à 1Gbit/s contre 45 minutes avec l'ADSL.

 

Comment équiper son logement en fibre optique ?

Quel que soit le type de logement, chacun peut équiper son foyer en fibre optique.

En habitat collectif de 4 logements et plus, (copropriété ou bailleur), une convention d’opérateur d’immeuble doit être signée avec SFR pour autoriser l’installation de la fibre optique dans les parties communes. Des équipements sont installés aux frais exclusifs de l’opérateur, cela ne coûte rien aux habitants. Le raccordement final de chaque logement se réalise ensuite, à la prise d’abonnement auprès de l’opérateur commercial.

Les personnes résidant en logement collectif doivent se rapprocher de leur copropriété, syndic ou bailleur afin de s’assurer qu’une convention d’immeuble a été signée, permettant à SFR FTTH de réaliser les travaux au niveau de chaque étage. Sans cette convention, les appartements ne peuvent pas être rendus éligibles.

 

En maison individuelle, la convention d’opérateur d’immeuble n’est pas requise : le raccordement du pavillon est réalisé après abonnement, à partir d’un boîtier situé dans la rue (généralement dans une chambre en voirie ou sur un poteau) et destiné à desservir un ou plusieurs pavillons. En principe, le pavillon est raccordé techniquement selon le même mode que le réseau téléphonique (soit souterrain, soit aérien). Généralement, il n’y a pas de frais de mise en service pour l’abonné. En revanche, des travaux particuliers d’aménagement sur la propriété privée peuvent être nécessaires pour ce raccordement (par exemple l’installation d’un fourreau dans le jardin), ceux-ci sont à la charge du propriétaire.

 

Comment vérifier l’éligibilité de son foyer ?

La meilleure solution consiste à s’inscrire sur les sites dédiés de son fournisseur d’accès internet. A l’approche de la commercialisation de la fibre pour votre logement, vous serez ainsi automatiquement recontactés.

publié le : 26/10/2020

Nouvel adressage sur Valdurenque :

Avec l’arrivée de la fibre sur le territoire et pour se conformer à la nouvelle règlementation, le Conseil Municipal a procédé à une dénomination et numérotation des routes, chemins et rues sur la commune de Valdurenque.

 

 

Cette action contribue à améliorer l’accessibilité de votre maison aux services de secours (SAMU, Pompiers, Gendarmerie), de médecine d’urgence, de sécurité publique, à l’efficacité des services de livraison, etc. L’ensemble de ces interlocuteurs ayant dorénavant besoin d’une adresse normalisée.

La nouvelle dénomination est exclusivement appliquée sur les routes et chemins hors agglomération mais aussi sur deux nouvelles rues dans le centre-bourg, la rue des Orchidées (nouveau lotissement avenue de Mazamet) et la rue du Cimetière (longe l’ancienne usine Lasbordes). Elle entraîne une nouvelle numérotation pour chaque bâti présent aux abords de ces voies (route ou chemin). Ainsi donc, à la place d’avoir une numérotation en suivi avec nombres impairs à gauche et pairs à droite comme dans les rues du village, la numérotation sera métrique. De ce fait, le numéro représentera la distance en mètre entre le début de la voie et l’entrée de la propriété ou de l’habitation au droit de la voie. La spécification des nombres impairs à gauche et pairs à droite s’appliquera.

Bien entendu, la réflexion menée par la municipalité a tenu compte du lieu-dit existant mais aussi de la désignation historique de la voie. Ainsi donc, le chemin qui mène aux « Cambous » devient le « chemin des Cambous », idem pour « Le Pesquié » qui sera dénommé le « chemin du Pesquié », ou bien encore « la route de Noailhac » qui devient la « route de la Plaine Basse » jusqu’à la limite communale, …

 

Par ailleurs, quelques rues existantes dans le centre-bourg du village seront impactées avec une nouvelle numérotation pour corriger certaines incohérences.

 

Nous sommes conscients que ce nouvel adressage n’est pas sans conséquence pour les administrés des habitations concernées car cela impliquera à chacun de faire toutes les démarches nécessaires auprès des diverses administrations et organismes qui gèrent les contrats et abonnements (fournisseurs gaz, électricité, impôts, CPAM, CAF, assurances, banques, …) pour les informer du nouvel adressage. Toutefois, comme évoqué plus haut, cette opération permet aux services de secours de pouvoir intervenir plus vite en cas de problèmes, notamment lorsque les minutes et secondes sont comptées !

Nouvelles dénominations de voies
Nouvel adressage dans Valdurenque.pdf
Document Adobe Acrobat [1.4 MB]

Modifié le : 26/10/2020

Zone humide : Le cheminement piéton avance à petits pas mais sûrement !

publié le : 24/09/2020

Un nouveau container verres dans le village :

A la demande des riverains et des utilisateurs du boulodrome, un nouveau container à verres a été placé dans un angle du boulodrome (intersection rue du Communal et rue Mathieu Cros).

 

Contrairement aux anciens containers, celui-ci reste discret mais se rendra très utile.

 

Ce nouveau point de récup permet de mieux quadriller le village. Les autres points sont les suivants :

  • Rue de Ramonoy (à côté des serres Haberschill)

  • Rue de l’Autan (à côté de la salle des fêtes)

  • Avenue Louis Raucoules (à côté de l’église, container enterré)

  • MJC

 

Dès qu'il sera plein, merci aux utilisateurs d'en informer le secrétariat de mairie qui fera faire le nécessaire auprès de la communauté d'agglomération.

publié le : 23/09/2020

Rue de l'Autan :

Un nouveau cheminement piéton

Nouveau lotissement communal :

Les habitations commencent à pousser !

 

 

Deux nouveaux ralentisseurs dans la rue de l'Autan

Certains peuvent penser que les ralentisseurs sur la commune de Valdurenque poussent comme des champignons mais à ce jour, c'est la seule solution pour réduire efficacement la vitesse dans les rues du village.

Aussi, les deux ralentisseurs qui ont vu le jour dans la rue de l'Autan (un avant la salle des fêtes et l'autre après l'impasse de Pratescou) sont à la demande des riverains qui jugent dangereux de se promener à pied ou à vélo dans cette rue en raison d'une vitesse excessive.

Mis en ligne : 14/11/2019

Aménagement avenue Louis Raucoules

Les travaux de sécurisation de la traversée sont terminés

 

Les travaux concernant la sécurisation de la traversée du centre bourg de Valdurenque sont terminés depuis fin octobre. Ils ont débuté en juin sur l'avenue Louis-Raucoules, artère principale du centre bourg. Le montant des travaux s'est élevé à 181 870 €.

 

Tout a été pensé pour la sécurité avec une réduction de la chaussée afin de diminuer la vitesse des usagers de la route. Ce rétrécissement a permis de conserver le stationnement aux commerces de proximité mais surtout de garantir un cheminement piéton sécurisé et accessible aux personnes à mobilité réduite, délimité par des potelets bleus. Les passages piétons sont protégés par des jardinières et marqués au sol par de la résine en couleur. Deux radars pédagogiques ont également été mis en place à chaque entrée du village afin de sensibiliser les conducteurs (50 km/h) et deux autres provisoires de part et d'autre des travaux finis (30 km/h). La vitesse sur l'avenue Raucoules est ainsi limitée à 30 km/h et le stationnement à 15 minutes. Ces travaux ont pu bénéficier de la participation de l'Etat, de la région Occitanie, du Département du Tarn et de la communauté d'agglomération de Castres Mazamet.

Mis en ligne : 06/11/2019

Aménagement de la traverse du centre-bourg

Aménagement de la traverse
Aménagement - Avenue Louis Raucoules -PR[...]
Document Adobe Acrobat [678.0 KB]

Lotissement d'Aigueventade

Plan du lotissement
GEO plan aménagement bis.pdf
Document Adobe Acrobat [525.1 KB]

Renseignements pour la vente des lots : 06 89 84 42 29

Zone humide de Pélapoul - Projet

Vue de dessus

Rue de l'Autan - Projet cheminement piéton

Vue de dessus - Photomontage

CONTACT :

Mairie de Valdurenque
20 avenue Louis Raucoules

81090 Valdurenque

 

Tél. : 05 63 50 51 18

Courriel :

mairiedevaldurenque@wanadoo.fr

Horaires d'ouverture :

Lundi09:30 - 12:00
16:00 - 18:30
Mardi08:30 - 12:00
Mercredi09:30 - 12:00
Jeudi08:30 - 12:00
16:00 - 18:30
Vendredi08:30 - 12:00

Météo locale

Ephéméride

Nombre de visites

Version imprimable | Plan du site
© Commune de Valdurenque

Site créé avec IONOS MyWebsite.